Robert Daniels+FollowCharlotte’s oldest building gets a tasty new lifeCharlotte’s oldest building in South End is about to become the city’s most talked-about dining spot. The Leeper & Wyatt Building, once a bustling grocery store from 1903, is being reborn as Wyatt’s Superfine—a four-story restaurant with a rooftop solarium. What’s cool is how the menu will spotlight local farms, with house-milled grains for fresh bread and pasta. The Tonidandel-Brown team fought to save this historic gem, even moving it 750 feet to keep it standing. Imagine grabbing dinner in a place that’s seen over a century of Charlotte history! What do you think—will you check it out? #Food #CharlotteEats #HistoricPreservation00Share
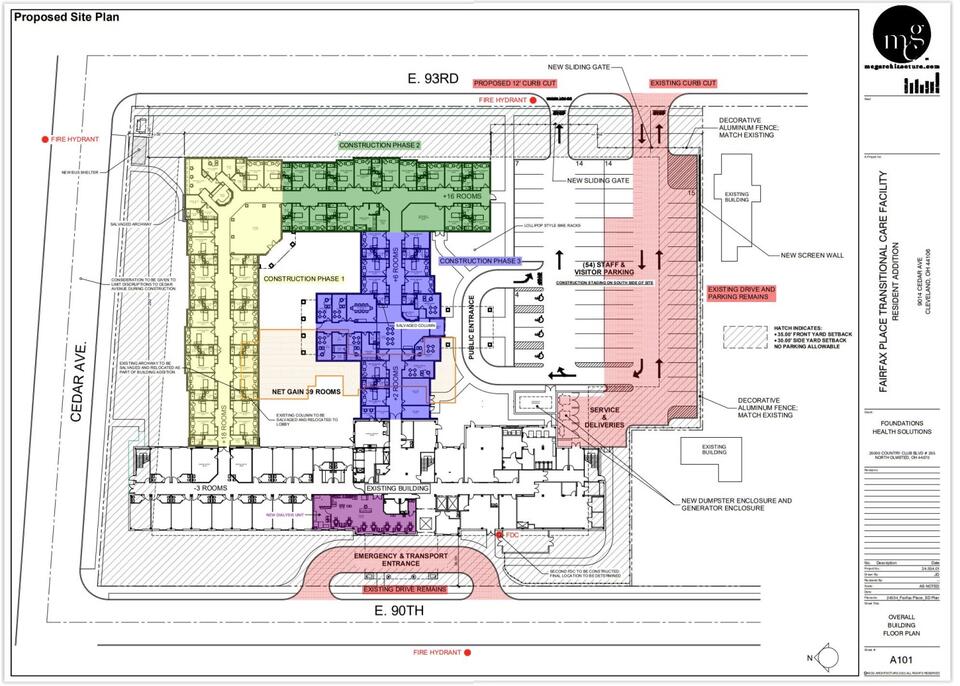
Christina Davis+FollowCleveland’s historic mansion makes way for careA piece of Cleveland’s history is about to disappear: the 19th-century mansion on Cedar Avenue, designed by renowned architect Charles Schweinfurth, is set for demolition. This isn’t just about losing an old building—it's about the city’s changing needs. The expansion of the Gardens of Fairfax Healthcare Center will double its size, bringing 84 new private rooms and keeping families closer to their loved ones. While some original features will be preserved in the new design, many are left wondering: is progress worth the loss of local heritage? How do you feel about trading history for modern care? #Business #Cleveland #HistoricPreservation10Share
Larissa wilson+FollowNational Trust Sues to Block Trump-Backed White House Ballroom Project The National Trust for Historic Preservation filed a lawsuit on December 12 seeking to halt construction of a proposed White House ballroom supported by President Donald Trump. The suit, filed in the U.S. District Court for the District of Columbia, names Trump, the National Park Service, and several other administration officials. The organization argues the project could threaten the historic integrity of the White House grounds, while supporters say the ballroom would modernize facilities used for official events.#WhiteHouse #HistoricPreservation #DonaldTrump #NationalTrust #LegalChallenge #USPolitics #BreakingNews #NewsUpdate19419Share
Hatter Gone Mad+FollowIn 1945, General Eisenhower made a decision that would preserve truth for generations. While touring the liberation of Nazi concentration camps, he witnessed horrors so unimaginable that he immediately understood something chilling about human nature. He knew that one day, people would claim none of it ever happened. What he did next became one of the most important acts of historical preservation in modern history. #facebookrepost #HumanHistory #HistoricPreservation #54052Share